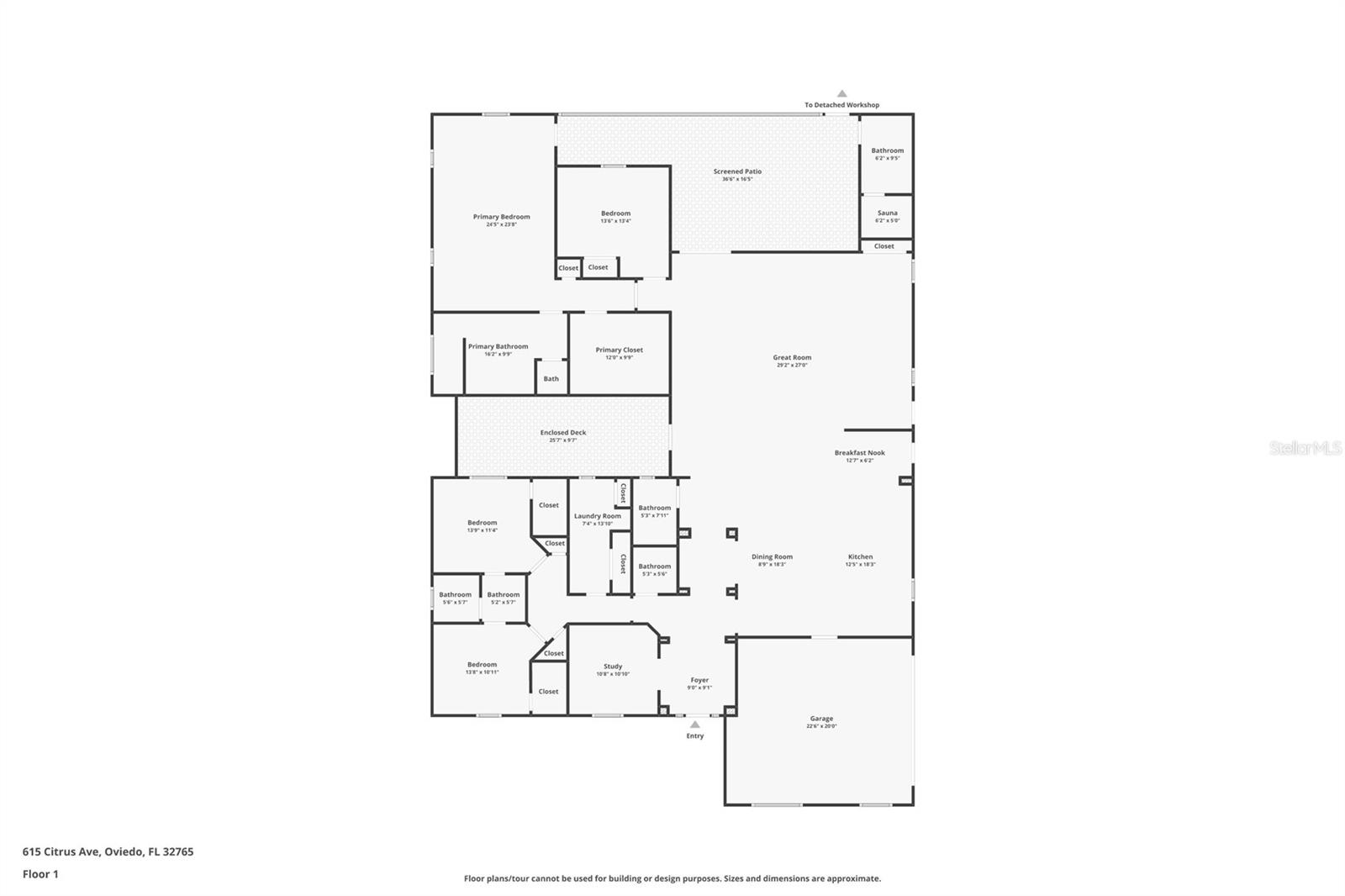
615 Citrus Avenue, OVIEDO, FL 32765
Property Photos
Would you like to sell your home before you purchase this one?
Priced at Only: $725,000
For more Information Call:
Address: 615 Citrus Avenue, OVIEDO, FL 32765
Property Location and Similar Properties
- MLS#: O6371042 ( Residential )
- Street Address: 615 Citrus Avenue
- Viewed: 7
- Price: $725,000
- Price sqft: $45
- Waterfront: No
- Year Built: 1979
- Bldg sqft: 16143
- Bedrooms: 4
- Total Baths: 5
- Full Baths: 4
- 1/2 Baths: 1
- Garage / Parking Spaces: 2
- Days On Market: 3
- Additional Information
- Geolocation: 28.6795 / -81.2141
- County: SEMINOLE
- City: OVIEDO
- Zipcode: 32765
- Subdivision: Oviedo Terrace
- Elementary School: Lawton
- Middle School: Jackson Heights
- High School: Oviedo
- Provided by: KELLER WILLIAMS ADVANTAGE REALTY
- Contact: Stacie Brown Kelly
- 407-977-7600

- DMCA Notice
-
DescriptionOne or more photo(s) has been virtually staged. Welcome to 615 Citrus Avenue, a truly one of a kind residence in the heart of Oviedo, where timeless Old Florida charm meets thoughtful modern expansion. Situated on an oversized corner lot with NO HOA and crowned by a 2023 metal roof, this custom renovated home offers the rare flexibility, functionality, and lifestyle. Originally a modest Florida style home, extensive additions and renovations have transformed this property into an open, inviting design perfect for hosting, entertaining, and everyday living. The heart of the home is the massive, reimagined gourmet kitchen, featuring gas cooking with an owned propane tank, a large center island, vented hood to the exterior, abundant cabinetry, and multiple dining and gathering areas that flow seamlessly into the expansive great room. This flexible floor plan offers 4 generously sized bedrooms, 4.5 bathrooms, plus a dedicated flex room ideal for a home office, playroom or creative space. The primary suite is truly expansive, offering ample space for a sitting area or private retreat, along with large closets and a well appointed ensuite bath. Secondary bedrooms are notably spacious, providing comfort and versatility for family, guests, or multigenerational living. Step outside to your private backyard retreat, designed for year round enjoyment. Highlights include a solar heated pool and spa, screened lanai with tongue and groove ceilings, cabana bath, and a custom built sauna for ultimate relaxation. Multiple outdoor seating areas make entertaining effortless, while the fenced yard adds privacy and peace of mind. Adding to the propertys exceptional versatility are two sheds, including a charming playhouse, a detached workshop, and double gate access with power and sewer hookup, perfect for parking an RV, boat, or trailer. A side load 2 car garage completes the package. Major system updates include AC systems (2014 & 2015), hybrid water heater (2023), pool built in 2019, and dual septic systems, with one added during the home expansion. Located in highly desirable Seminole County, this home is zoned for top rated schools and offers easy access to downtown Oviedo, Seminole Cross Trail, UCF, major medical facilities, shopping, dining, and convenient commuting routes. Enjoy the freedom of no HOA, space to live fully, and a location that balances charm, convenience, and community. This is not just a home its a lifestyle opportunity rarely found in Oviedo. Schedule your private tour to experience it!
Payment Calculator
- Principal & Interest -
- Property Tax $
- Home Insurance $
- HOA Fees $
- Monthly -
Features
Building and Construction
- Covered Spaces: 0.00
- Exterior Features: Outdoor Shower, Playground, Private Yard, Rain Gutters, RV Hookup, Sauna, Storage
- Fencing: Fenced, Wood
- Flooring: Tile
- Living Area: 3579.00
- Other Structures: Shed(s), Storage
- Roof: Metal
Land Information
- Lot Features: Corner Lot, Landscaped, Paved
School Information
- High School: Oviedo High
- Middle School: Jackson Heights Middle
- School Elementary: Lawton Elementary
Garage and Parking
- Garage Spaces: 2.00
- Open Parking Spaces: 0.00
- Parking Features: Driveway
Eco-Communities
- Pool Features: Child Safety Fence, In Ground, Outside Bath Access, Solar Heat
- Water Source: Public
Utilities
- Carport Spaces: 0.00
- Cooling: Central Air
- Heating: Central
- Pets Allowed: Yes
- Sewer: Septic Tank
- Utilities: Cable Available, Electricity Available, Propane, Public, Water Available
Finance and Tax Information
- Home Owners Association Fee: 0.00
- Insurance Expense: 0.00
- Net Operating Income: 0.00
- Other Expense: 0.00
- Tax Year: 2024
Other Features
- Appliances: Cooktop, Dishwasher, Disposal, Dryer, Electric Water Heater, Kitchen Reverse Osmosis System, Microwave, Range, Refrigerator, Washer
- Country: US
- Furnished: Unfurnished
- Interior Features: Kitchen/Family Room Combo, Open Floorplan, Sauna, Stone Counters, Walk-In Closet(s)
- Legal Description: LOT 79 OVIEDO TERRACE PB 11 PG 6
- Levels: One
- Area Major: 32765 - Oviedo
- Occupant Type: Owner
- Parcel Number: 09-21-31-501-0000-0790
- View: Pool
- Zoning Code: R-1
Nearby Subdivisions
1040 Big Oaks Blvd Oviedo Fl 3
Alafaya Trail Sub
Alafaya Woods Ph 03
Alafaya Woods Ph 04
Alafaya Woods Ph 06
Alafaya Woods Ph 07
Alafaya Woods Ph 1
Alafaya Woods Ph 10
Alafaya Woods Ph 11
Alafaya Woods Ph 12b
Alafaya Woods Ph 16
Alafaya Woods Ph 17
Alafaya Woods Ph 18
Alafaya Woods Ph 2
Aloma Bend Tr 3a
Aloma Bend Tr 4
Aloma Woods Ph 1
Aloma Woods Ph 2
Bear Creek
Bellevue
Bentley Cove
Bentley Woods
Beverly Hills
Big Oaks
Carillon Tr 105 Ph 2 At
Cedar Glen Of Aloma Woods
Clifton Park
Creekwood
Cypress Head At The Enclave
Dunhill
Ellingsworth
Estates At Aloma Woods Ph 2
Evans Square
Florida Groves Companys First
Fosters Grove At Oviedo
Fosters Grove At Oviedo Ph 2
Fox Run
Genova Woods Sec 2 5 Acre Dev
Greystone
Hammock Reserve
Hawks Overlook
Heronwood At Carillon
Hideaway Cove At Oviedo Ph 3
Hunters Stand At Carillon
Huntington Ph 2
Jackson Heights
Kenmure
Kingsbridge East Village
Kingsbridge Ph 1a
La June Park
Lafayette Forest
Little Creek Ph 4a
Little Lake Georgia Terrace
Lot 48 Alafaya Woods Ph 5 Pb 3
Lukas Landing
Mac Kinleys Mill
Milton Square
None
Oak Mount Sub
Oviedo Forest
Oviedo Forest Phase 2
Oviedo Gardens A Rep
Oviedo Oaks
Oviedo Terrace
Parkdale Place
Preserve At Black Hammock Rep
Ravencliffe
Sawgrass Sub
Shed Grove Homes
Southern Oaks Ph Two
Stillwater
Stillwater Ph 2
Sweetwater Creek
Swopes Amd Of Iowa City
Terralago
The Preserve At Lake Charm
Tiffany Woods
Timberwood
Tract 105 Ph Iii At Carillon
Tuscawilla Estates
Tuska Ridge
Twin Lakes Manor
Twin Rivers
Twin Rivers Model Home Area
Twin Rivers Sec 1
Twin Rivers Sec 4
Villages At Kingsbridge West T
Waverlee Woods
Whispering Oaks
Willa Lake Ph 1
Windmeadow Farms
- Frank Filippelli, Broker,CDPE,CRS,REALTOR ®
- Southern Realty Ent. Inc.
- Mobile: 407.448.1042
- frank4074481042@gmail.com









































































