639 Cornwell On The Gulf, VENICE, FL 34285
Property Photos
Would you like to sell your home before you purchase this one?
Priced at Only: $4,050,000
For more Information Call:
Address: 639 Cornwell On The Gulf, VENICE, FL 34285
Property Location and Similar Properties
- MLS#: A4673159 ( Land )
- Street Address: 639 Cornwell On The Gulf
- Viewed: 3
- Price: $4,050,000
- Price sqft: $0
- Waterfront: Yes
- Wateraccess: Yes
- Waterfront Type: Beach Front,Gulf/Ocean
- Year Built: Not Available
- Bldg sqft: 0
- Days On Market: 4
- Additional Information
- Geolocation: 27.0923 / -82.4574
- County: SARASOTA
- City: VENICE
- Zipcode: 34285
- Provided by: COLDWELL BANKER REALTY
- Contact: Mark Klecka
- 941-366-8070

- DMCA Notice
-
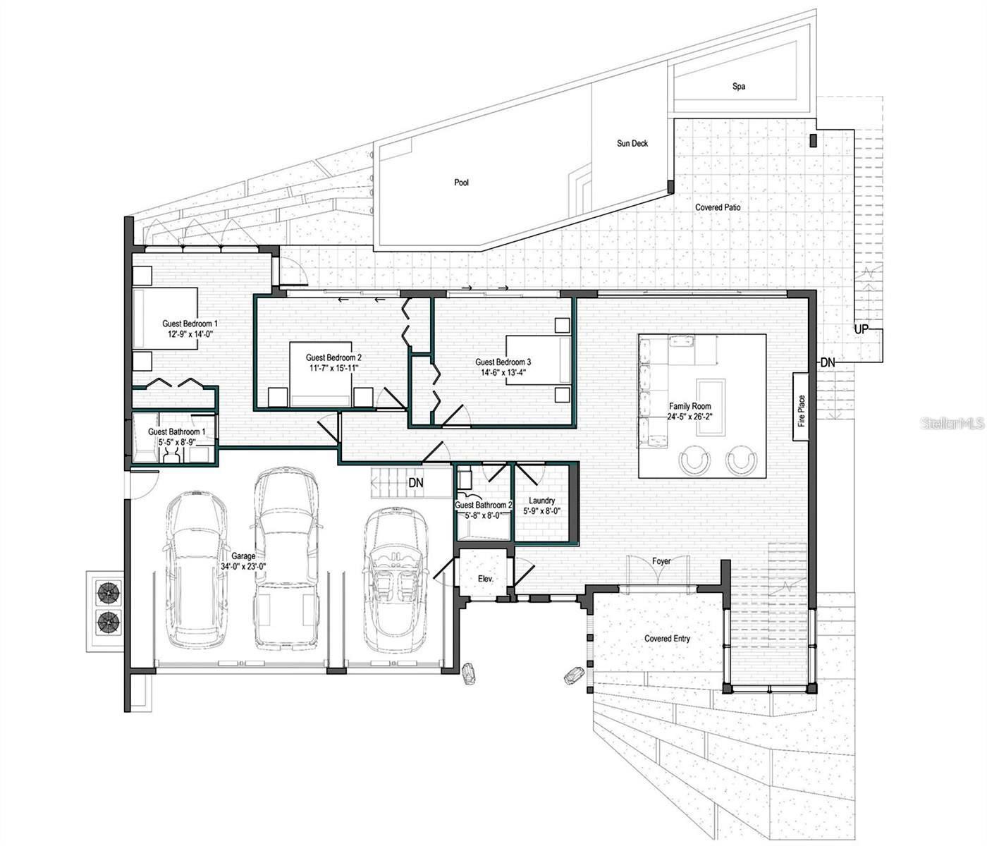
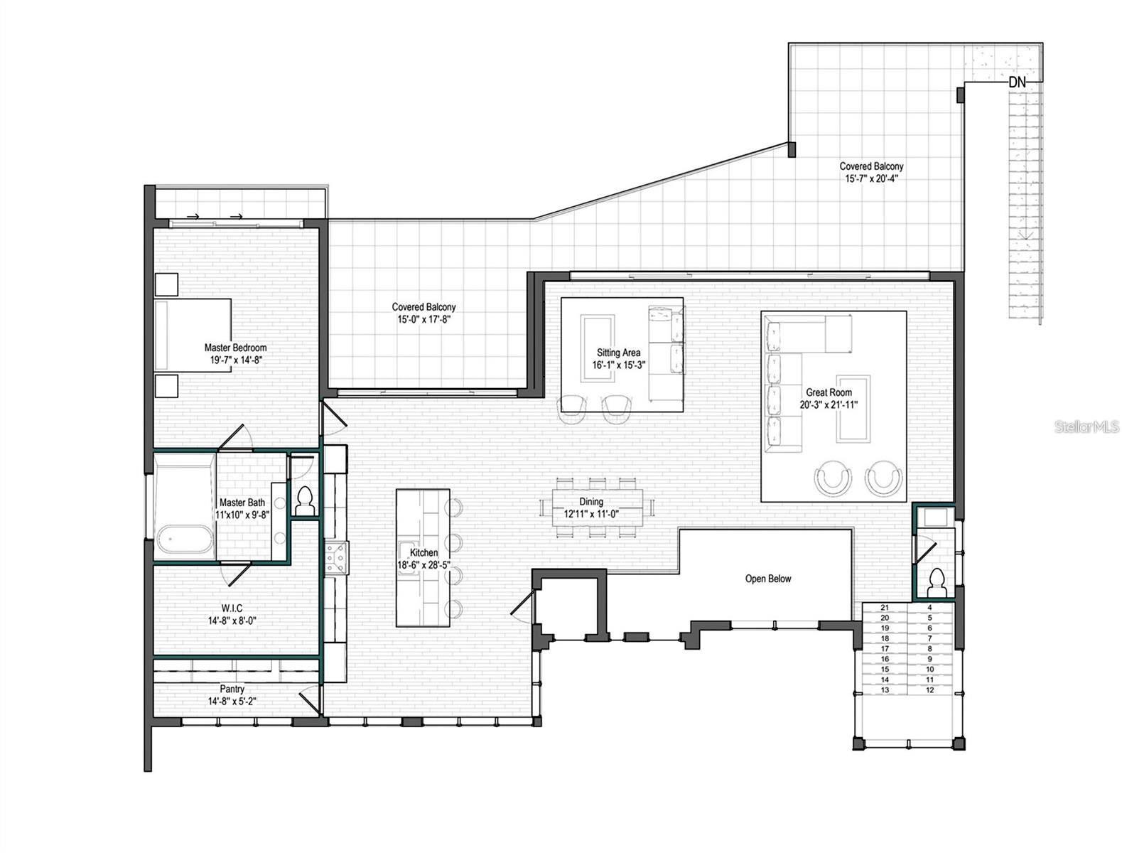
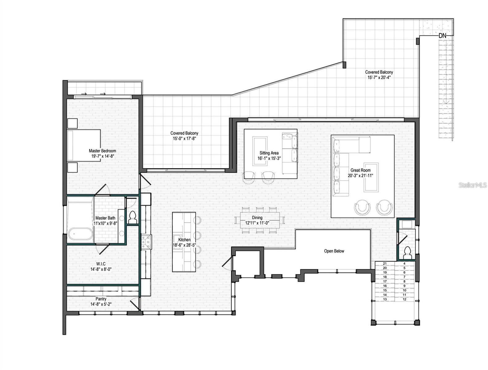
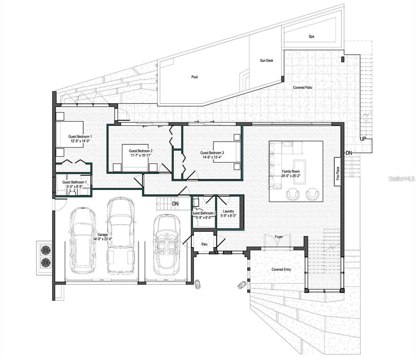
DescriptionOne or more photo(s) has been virtually staged. Live beyond the horizon at Cornwell on the Gulfone of the final, truly rare opportunities to claim over an acre (1.2 Acres) of direct Gulf front land on Venices iconic coastline. Boasting approximately 105 feet of private beachfront frontage, this extraordinary parcel offers the freedom to create a private luxury compound that captures the essence of coastal living: architectural artistry, seamless indoor outdoor spaces, and an intimate connection to the sea that fewer and fewer properties can ever replicate. The land itself is remarkablegenerously sized, quietly positioned, and zoned for residential single family development under the current local zoning classification. The expansive dimensions support a dream worthy layout: a grand residence with panoramic water views, detached guest quarters, infinity edge pool overlooking the Gulf, outdoor kitchens, fire features, rooftop terraces, and private pathways leading directly to the sand. With over 100 feet of pristine beachfront and a buildable acreage well suited for custom single family living, this is a blank canvas where luxury, privacy, and nature exist in perfect harmony. For buyers seeking both vision and momentum, the property includes architecturally stunning, fully designed plans with active approvals and permits already in placea significant advantage in todays environment of rising construction costs and extended review timelines. These plans thoughtfully blend modern elegance with coastal simplicity, maximizing view corridors, natural light, and functional livability. They streamline the build process while still allowing meaningful customization, giving you the best of both worlds: an accelerated timeline toward breaking ground, and the ability to imprint your personal aesthetic. Construction would be handled by Beechwood Builders, a respected local custom home builder known for quality craftsmanship, attention to detail, and delivering luxury residences that stand the test of time. Engaging Beechwood Builders means you benefit from their local experience, proven track record, and familiarity with coastal construction all key for building on a Gulf front lot. Utilities to the site are ready to go: the lot has access to city water and sewer and is pre plumbed for modern amenities; electric and other utility hookups are available and mapped in the approved plans. That reduces the complexity and added cost sometimes associated with beach front builds, allowing a smoother, more predictable path to your finished residence by the sea. Located just moments from historic downtown Venice, Sharkys, and the South Jetty, the property offers a rare balance of serenity and accessibility. Enjoy boutique shopping, waterfront dining, cultural events, and a charming coastal lifestyle all from a private sanctuary that feels worlds away. Cornwell on the Gulf isnt just a piece of land its a once in a generation opportunity to create something enduring, exquisite, and deeply personal. Whether you build a visionary estate from the ground up or bring the existing plans to life with ease with Beechwood Builders at the helm, this property invites you to craft a lifestyle defined by beauty, privacy, and the infinite luxury of the waterfront. Seller is open to holding the note, in first position, for respectful and acceptable terms.
Payment Calculator
- Principal & Interest -
- Property Tax $
- Home Insurance $
- HOA Fees $
- Monthly -
Features
Building and Construction
- Covered Spaces: 0.00
- Living Area: 0.00
Land Information
- Lot Features: Cleared, CoastalConstruction Control Line, Landscaped, Private, Street Dead-End
Garage and Parking
- Garage Spaces: 0.00
- Open Parking Spaces: 0.00
Eco-Communities
- Water Source: Public
Utilities
- Carport Spaces: 0.00
- Pets Allowed: Yes
- Sewer: Public Sewer
- Utilities: BB/HS Internet Available, Cable Available, Electricity Available
Finance and Tax Information
- Home Owners Association Fee: 0.00
- Insurance Expense: 0.00
- Net Operating Income: 0.00
- Other Expense: 0.00
- Tax Year: 2024
Other Features
- Country: US
- Current Use: Residential
- Legal Description: S 107.2 FT OF N 600 FT OF US LOT 1 LESS E 850 FT THEREOF LESS N 7 FT FOR RD
- Area Major: 34285 - Venice
- Parcel Number: 0177020010
- View: Water
- Zoning Code: RSF3
Similar Properties
- Frank Filippelli, Broker,CDPE,CRS,REALTOR ®
- Southern Realty Ent. Inc.
- Mobile: 407.448.1042
- frank4074481042@gmail.com



































