639 Cornwell On The Gulf, VENICE, FL 34285
Property Photos
Would you like to sell your home before you purchase this one?
Priced at Only: $4,050,000
For more Information Call:
Address: 639 Cornwell On The Gulf, VENICE, FL 34285
Property Location and Similar Properties
- MLS#: A4673433 ( Residential )
- Street Address: 639 Cornwell On The Gulf
- Viewed: 5
- Price: $4,050,000
- Price sqft: $866
- Waterfront: Yes
- Waterfront Type: Beach Front,Gulf/Ocean
- Year Built: 2026
- Bldg sqft: 4674
- Bedrooms: 4
- Total Baths: 4
- Full Baths: 3
- 1/2 Baths: 1
- Days On Market: 4
- Additional Information
- Geolocation: 27.0923 / -82.4574
- County: SARASOTA
- City: VENICE
- Zipcode: 34285
- Provided by: COLDWELL BANKER REALTY

- DMCA Notice
-
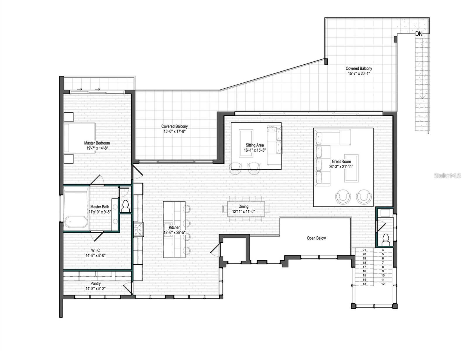
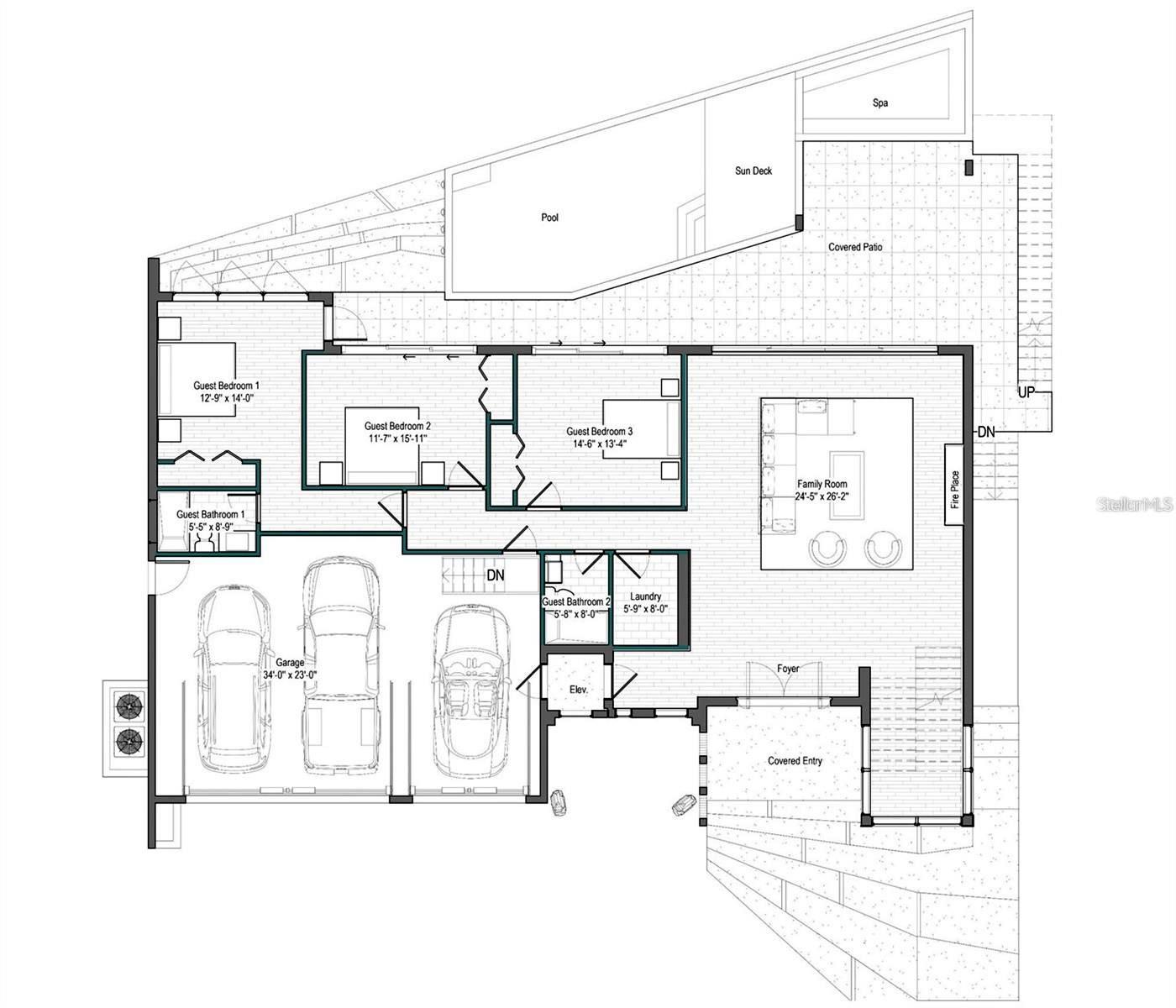
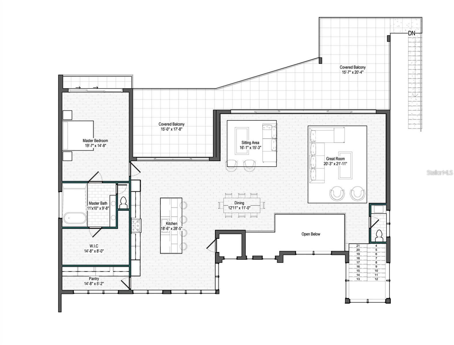
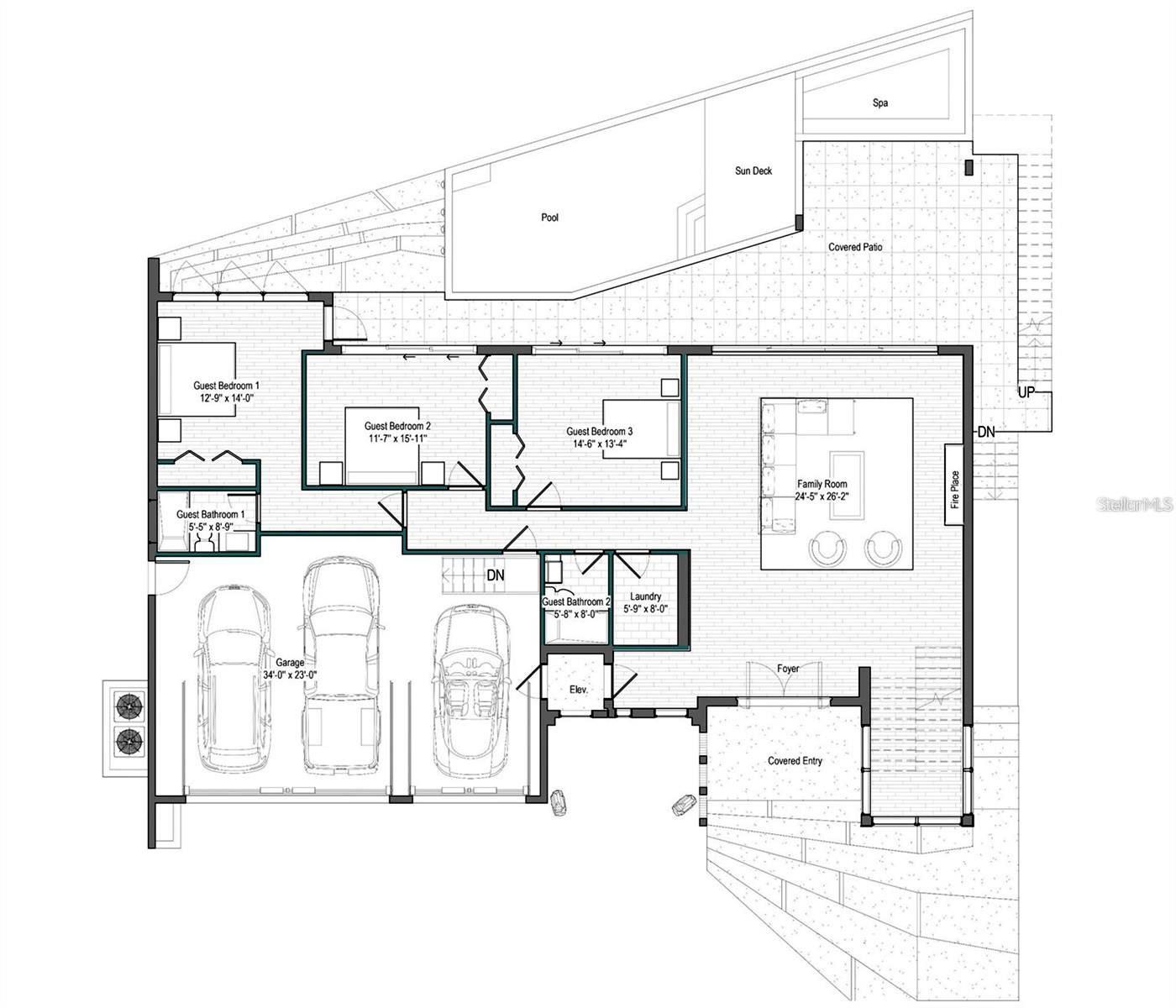
DescriptionOne or more photo(s) has been virtually staged. Pre Construction. To be built. The Price is for the Lot, plans and all approved permitting to create shown structure Live beyond the horizon at Cornwell on the Gulf one of the final, truly rare opportunities to claim over an acre (1.2 Acres) of direct Gulf front land on Venices iconic coastline. Boasting approximately 105 feet of private beachfront frontage, this extraordinary parcel offers the freedom to create a private luxury compound that captures the essence of coastal living: architectural artistry, seamless indoor outdoor spaces, and an intimate connection to the sea that fewer and fewer properties can ever replicate. The land itself is generously sized, quietly positioned, and zoned for residential single family development under the current local zoning classification. The expansive dimensions support a dream worthy layout: a grand residence with panoramic water views, detached guest quarters, infinity edge pool overlooking the Gulf, outdoor kitchens, fire features, rooftop terraces, and private pathways leading directly to the sand. With over 100 feet of pristine beachfront and a buildable acreage well suited for custom single family living, this is a blank canvas where luxury, privacy, and nature exist in perfect harmony. For buyers seeking both vision and momentum, the property includes architecturally stunning, fully designed plans with active approvals and permits already in placea significant advantage in todays environment of rising construction costs and extended review timelines. These plans thoughtfully blend modern elegance with coastal simplicity, maximizing view corridors, natural light, and functional livability. They streamline the build process while still allowing meaningful customization, giving you the best of both worlds: an accelerated timeline toward breaking ground, and the ability to imprint your personal aesthetic. Utilities to the site are ready to go: the lot has access to city water and sewer and is pre plumbed for modern amenities; electric and other utility hookups are available and mapped in the approved plans. That reduces the complexity and added cost sometimes associated with beach front builds, allowing a smoother, more predictable path to your finished residence by the sea. Located just moments from historic downtown Venice, Sharkys, and the South Jetty, the property offers a rare balance of serenity and accessibility. Enjoy boutique shopping, waterfront dining, cultural events, and a charming coastal lifestyle, all from a private sanctuary that feels worlds away. Cornwell on the Gulf isnt just a piece of land; its a once in a generation opportunity to create something enduring, exquisite, and deeply personal. Whether you build a visionary estate from the ground up or bring the existing plans to life with ease, this property invites you to craft a lifestyle defined by beauty, privacy, and the infinite luxury of the waterfront. Seller is open to holding the note, in first position, for respectful and acceptable terms.
Payment Calculator
- Principal & Interest -
- Property Tax $
- Home Insurance $
- HOA Fees $
- Monthly -
Features
Building and Construction
- Covered Spaces: 0.00
- Exterior Features: None
- Flooring: Other
- Living Area: 4674.00
- Roof: Other
Property Information
- Property Condition: Pre-Construction
Land Information
- Lot Features: Cleared, CoastalConstruction Control Line, Cul-De-Sac, In County
Garage and Parking
- Garage Spaces: 0.00
- Open Parking Spaces: 0.00
Eco-Communities
- Pool Features: Heated, Infinity
- Water Source: Public
Utilities
- Carport Spaces: 0.00
- Cooling: Other
- Heating: Central
- Pets Allowed: Yes
- Sewer: Public Sewer
- Utilities: Cable Available, Electricity Available, Sewer Available
Finance and Tax Information
- Home Owners Association Fee: 0.00
- Insurance Expense: 0.00
- Net Operating Income: 0.00
- Other Expense: 0.00
- Tax Year: 2025
Other Features
- Appliances: Other
- Country: US
- Furnished: Unfurnished
- Interior Features: Other
- Legal Description: S 107.2 FT OF N 600 FT OF US LOT 1 LESS E 850 FT THEREOF LESS N 7 FT FOR RD
- Levels: One
- Area Major: 34285 - Venice
- Occupant Type: Vacant
- Parcel Number: 0177020010
- View: Water
- Zoning Code: RSF3
Similar Properties
Nearby Subdivisions
0000 - Not Part Of A Subdivisi
Aldea Mar
Arcata Del Sol
Bayshore Estates
Beach Manor
Beach Manor Villas
Beach Park
Bellagio On Venice Island
Bird Bay Village
Bird Bay Villagesea Grape Vill
Country Club Estates
Curry Creek Condo Villa
Eagle Point Club
Eagle Point Club The
East Gate
East Gate Terrace Corr
East Gate Terrace Rev Corr Amd
East Venice
Golden Beach
Golden Beach Sub
Gulf Shores
La Guna Park
Not Applicable
Pelican Pointe Golf Country C
Pinebrook Lake Club Ph 2
Pinebrook South
South Venezia Park
Tarpon Center Bahama Villas
The Eagle Point Club
The Village At Eagle Point
Tra Ponti Villaggio
Venezia Park Rep
Venezia Park Sec Of Venice
Venice Bay Shore Sec
Venice Beach Apts Sec 1
Venice Edgewood Sec Of
Venice Gulf View
Venice Gulf View Resub
Venice Gulf View Sec Of
Venice Island
Villa Grande
- Frank Filippelli, Broker,CDPE,CRS,REALTOR ®
- Southern Realty Ent. Inc.
- Mobile: 407.448.1042
- frank4074481042@gmail.com


































